Apt. Archimede

Luogo: Milano

Anno: 2024

Mq: 160

Foto: Francesca Iovene

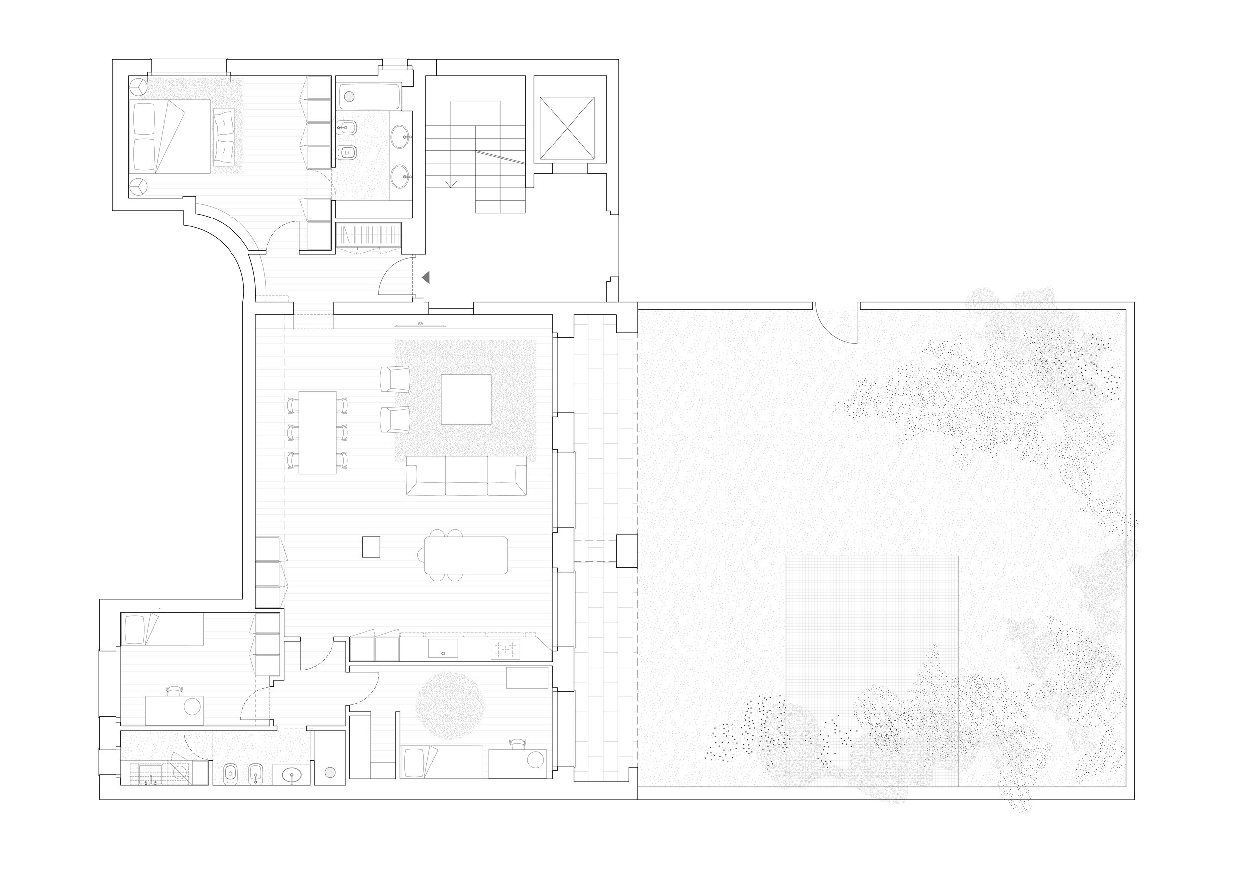
L’appartamento di 160 mq è stato di proprietà per oltre ottant’anni della stessa famiglia che lo acquistò negli anni Trenta. A quella stessa epoca ha mantenuto fede il progetto di ristrutturazione e il disegno degli interni

Lo spazio si articola in ingresso, cucina, soggiorno, camera da letto, bagno. Gode di una doppia esposizione e di abbondante luminosità: da un lato le finestre affacciano su curati edifici milanesi razionalisti da cui spuntano i monti della bergamasca, dall’altro un balcone del soggiorno si apre sul cortile verdeggiante di magnolie, alberi da frutto e un glicine.

il progetto ha voluto conservare l’atmosfera della casa attraverso un’impronta rinnovata molto personale e altrettanto rispettosa del contesto, cercando di mantenere l’originale uso degli ambienti, restaurare e ripristinare gli infissi, le porte e le boiserie, impiegare materiali naturali per le finiture e stilemi estetici nel disegno dell’arredo che rimandano in modo chiaro al razionalismo milanese.

 
Previous
Previous

Apt. Lamarmora

Next
Next

Apt. Anzani